Официальный дилер

ВАШ ЗАКАЗ Оформить заказ

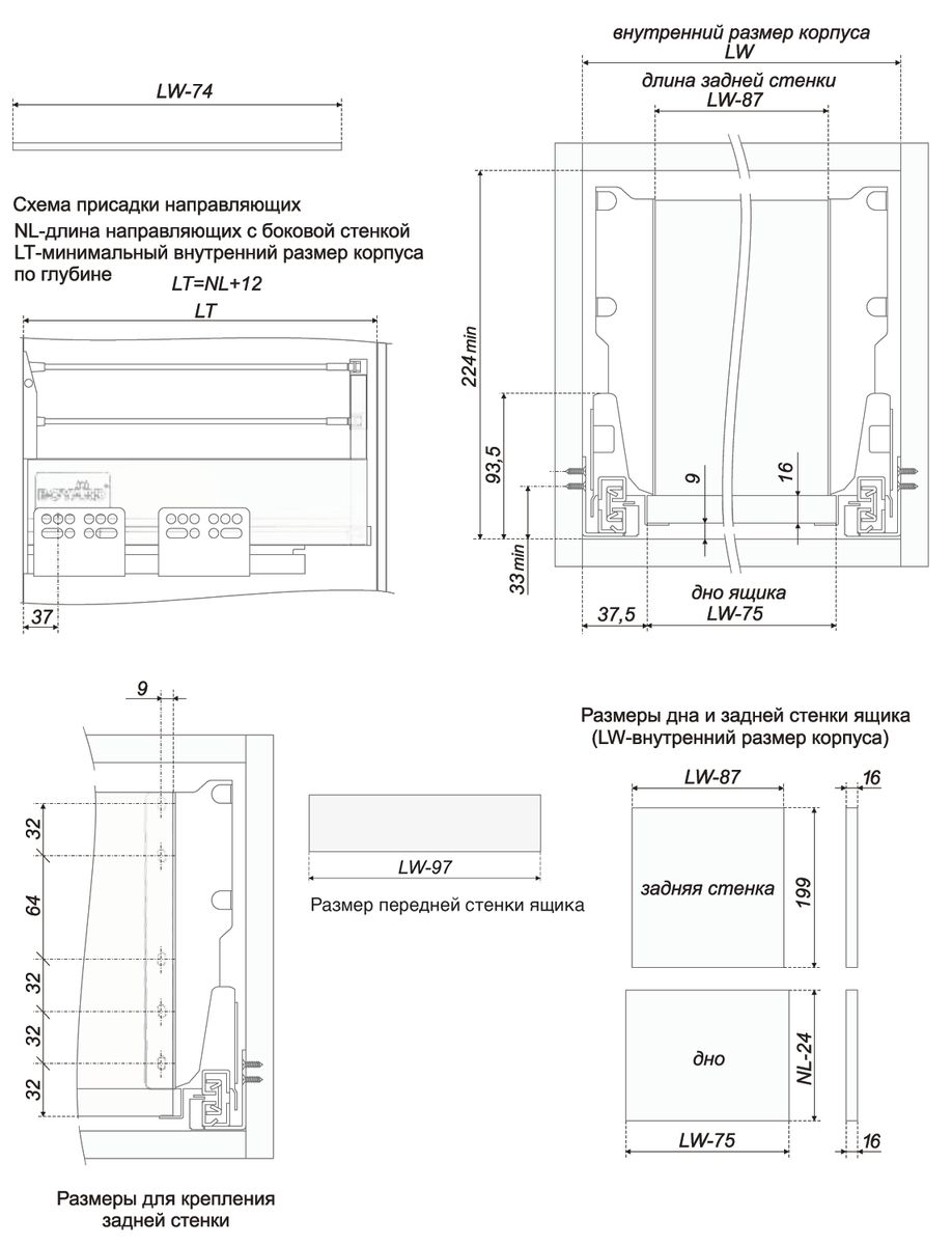
Передняя стенка ящика SWIMBOX SBW01/W/1100

Код товара: 25532
Артикул: SBW01/W/1100

200,00₽

Купить