




Прямые боковые стенки СТАРТ средней высоты SBDW12/W/350
Код товара: 25459
Артикул: SBDW12/W/350
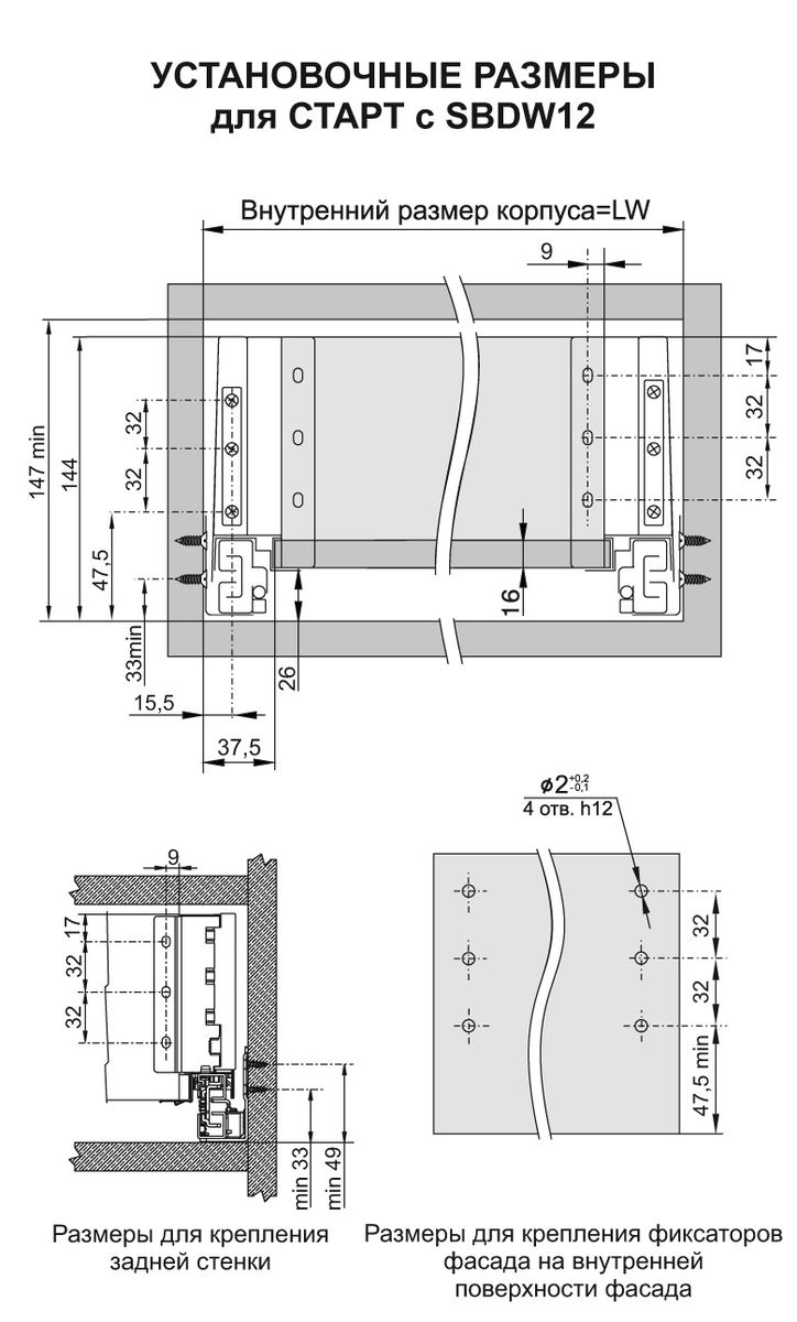
SBDW12 – прямые боковые стенки (левая и правая) для сборки мебельного ящика системы выдвижения СТАРТ средней высоты 118 мм для формирования выдвижного мебельного ящика с минимальной высотой проёма 147 мм. Прямые боковины отличает от традиционных эстетически более красивая лаконичная форма, которая, кроме этого, позволяет экономить внутреннее пространство ящика. Толщина прямых боковин – 12,8 мм.
Также, выдвижной мебельный ящик с прямыми боковинами получается более глубоким и монолитным. Ящик со сплошными боковыми стенками, без рейлингов, более удобен для хранения разных по габаритам, форме и длине предметов. Более высокие боковины лучше удерживают ряды из плоских тарелок, крышек, не позволяя им заваливаться набок и падать в пространство между рейлингами и корпусом мебели. При открытии и закрытии модуля с высокими сплошными боковинами половники, скалки, шампуры и другая длинногабаритная утварь не будет попадать в пространство между рейлингами и корпусом мебели и, соответственно, не помешает его движению.
Боковины с держателями задней стенки и фиксаторами фасада выполняют защитно-декоративную функцию, а также соединяют между собой основные элементы выдвижного ящика: передняя фасадная панель, задняя стенка и дно. Кроме этого, боковины выполняют функцию регулировки фасада выдвижного ящика, функцию подвижного крепления выдвижного ящика к опорной направляющей скрытого монтажа DB8181, предварительно установленной на боковой стенке непосредственно мебельного изделия и защищают от непреднамеренного снятия при полном выдвижении механизма. Боковые стенки SBDW12, покрытые порошковой эмалью методом распыления с последующей сушкой при температуре 90 градусов, прослужат весь эксплуатационный срок, даже в условиях агрессивной кухонной среды. В комплект также входят декоративные заглушки с логотипом BOYARD.
Прямые боковины для среднего ящика представлены в вариантах монтажной длины от 300 до 500 мм в трёх популярных цветах: графитовый, белый и серый.
Для сборки выдвижного мебельного ящика с помощью боковин SBDW12 необходимо самостоятельно изготовить фасад, заднюю стенку и дно ящика с учетом собственных пожеланий и потребностей по ширине и высоте готового ящика.
Высоту выдвижного мебельного ящика можно увеличить, используя прямоугольные рейлинги SBR09 и держатели рейлинга SBH40, в том количестве, ящик какой высоты вам необходим.
Внимание, важная информация!
Групповая коробка боковых стенок SBDW12 включает 10 комплектов боковин, а также 10 отдельных пакетов с держателями фасада, декоративными заглушками и необходимым крепежом.
В случае приобретения боковых стенок в розницу следует обязательно помнить, что для каждого приобретённого комплекта боковин вам обязательно должны положить пакетик с комплектующими и крепежом. Обязательно проверяйте наличие необходимого количества пакетиков с комплектующими при получении товара, а также не забывайте о них при распаковке вашего заказа.
1 121,00₽
Описание
SBDW12 – прямые боковые стенки (левая и правая) для сборки мебельного ящика системы выдвижения СТАРТ средней высоты 118 мм для формирования выдвижного мебельного ящика с минимальной высотой проёма 147 мм. Прямые боковины отличает от традиционных эстетически более красивая лаконичная форма, которая, кроме этого, позволяет экономить внутреннее пространство ящика. Толщина прямых боковин – 12,8 мм.
Также, выдвижной мебельный ящик с прямыми боковинами получается более глубоким и монолитным. Ящик со сплошными боковыми стенками, без рейлингов, более удобен для хранения разных по габаритам, форме и длине предметов. Более высокие боковины лучше удерживают ряды из плоских тарелок, крышек, не позволяя им заваливаться набок и падать в пространство между рейлингами и корпусом мебели. При открытии и закрытии модуля с высокими сплошными боковинами половники, скалки, шампуры и другая длинногабаритная утварь не будет попадать в пространство между рейлингами и корпусом мебели и, соответственно, не помешает его движению.
Боковины с держателями задней стенки и фиксаторами фасада выполняют защитно-декоративную функцию, а также соединяют между собой основные элементы выдвижного ящика: передняя фасадная панель, задняя стенка и дно. Кроме этого, боковины выполняют функцию регулировки фасада выдвижного ящика, функцию подвижного крепления выдвижного ящика к опорной направляющей скрытого монтажа DB8181, предварительно установленной на боковой стенке непосредственно мебельного изделия и защищают от непреднамеренного снятия при полном выдвижении механизма. Боковые стенки SBDW12, покрытые порошковой эмалью методом распыления с последующей сушкой при температуре 90 градусов, прослужат весь эксплуатационный срок, даже в условиях агрессивной кухонной среды. В комплект также входят декоративные заглушки с логотипом BOYARD.
Прямые боковины для среднего ящика представлены в вариантах монтажной длины от 300 до 500 мм в трёх популярных цветах: графитовый, белый и серый.
Для сборки выдвижного мебельного ящика с помощью боковин SBDW12 необходимо самостоятельно изготовить фасад, заднюю стенку и дно ящика с учетом собственных пожеланий и потребностей по ширине и высоте готового ящика.
Высоту выдвижного мебельного ящика можно увеличить, используя прямоугольные рейлинги SBR09 и держатели рейлинга SBH40, в том количестве, ящик какой высоты вам необходим.
Внимание, важная информация!
Групповая коробка боковых стенок SBDW12 включает 10 комплектов боковин, а также 10 отдельных пакетов с держателями фасада, декоративными заглушками и необходимым крепежом.
В случае приобретения боковых стенок в розницу следует обязательно помнить, что для каждого приобретённого комплекта боковин вам обязательно должны положить пакетик с комплектующими и крепежом. Обязательно проверяйте наличие необходимого количества пакетиков с комплектующими при получении товара, а также не забывайте о них при распаковке вашего заказа.





