




Прямые боковые стенки СТАРТ стандартной высоты SBDW11/GRPH/300
Код товара: 25448
Артикул: SBDW11/GRPH/300
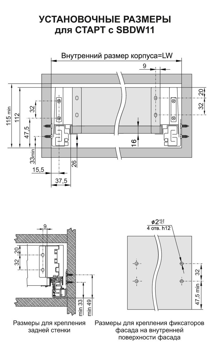
SBDW11 – прямые боковые стенки (левая и правая) для сборки мебельного ящика системы выдвижения СТАРТ стандартной высоты 86 мм для формирования выдвижного мебельного ящика с минимальной высотой проёма 115 мм. Прямые боковины отличает от традиционных эстетически более красивая лаконичная форма, которая также позволяет экономить внутреннее пространство ящика. Толщина прямых боковин – 12,8 мм.
Боковины с держателями задней стенки и фиксаторами фасада выполняют защитно-декоративную функцию, а также соединяют между собой основные элементы выдвижного ящика: передняя фасадная панель, задняя стенка и дно. Кроме этого, боковины выполняют функцию регулировки фасада выдвижного ящика, функцию подвижного крепления выдвижного ящика к опорной направляющей скрытого монтажа DB8181, предварительно установленной на боковой стенке непосредственно мебельного изделия и защищают от непреднамеренного снятия при полном выдвижении механизма. Боковые стенки SBDW11, покрытые порошковой эмалью методом распыления с последующей сушкой при температуре 90 градусов, прослужат весь эксплуатационный срок, даже в условиях агрессивной кухонной среды. В комплект также входят декоративные заглушки с логотипом BOYARD.
Прямые боковины для стандартного ящика представлены в вариантах монтажной длины от 300 до 500 мм в трёх популярных цветах: графитовый, белый и серый.
Для сборки выдвижного мебельного ящика с помощью боковин SBDW11 необходимо самостоятельно изготовить фасад, заднюю стенку и дно ящика с учетом собственных пожеланий и потребностей по ширине и высоте готового ящика.
Высоту выдвижного мебельного ящика можно увеличить, используя прямоугольные рейлинги SBR09 и держатели рейлинга SBH40, в том количестве, ящик какой высоты вам необходим.Внимание, важная информация!
Групповая коробка боковых стенок SBDW11 включает 10 комплектов боковин, а также 10 отдельных пакетов с держателями фасада, декоративными заглушками и необходимым крепежом.
В случае приобретения боковых стенок в розницу следует обязательно помнить, что для каждого приобретённого комплекта боковин вам обязательно должны положить пакетик с комплектующими и крепежом. Обязательно проверяйте наличие необходимого количества пакетиков с комплектующими при получении товара, а также не забывайте о них при распаковке вашего заказа.
739,00₽
Описание
SBDW11 – прямые боковые стенки (левая и правая) для сборки мебельного ящика системы выдвижения СТАРТ стандартной высоты 86 мм для формирования выдвижного мебельного ящика с минимальной высотой проёма 115 мм. Прямые боковины отличает от традиционных эстетически более красивая лаконичная форма, которая также позволяет экономить внутреннее пространство ящика. Толщина прямых боковин – 12,8 мм.
Боковины с держателями задней стенки и фиксаторами фасада выполняют защитно-декоративную функцию, а также соединяют между собой основные элементы выдвижного ящика: передняя фасадная панель, задняя стенка и дно. Кроме этого, боковины выполняют функцию регулировки фасада выдвижного ящика, функцию подвижного крепления выдвижного ящика к опорной направляющей скрытого монтажа DB8181, предварительно установленной на боковой стенке непосредственно мебельного изделия и защищают от непреднамеренного снятия при полном выдвижении механизма. Боковые стенки SBDW11, покрытые порошковой эмалью методом распыления с последующей сушкой при температуре 90 градусов, прослужат весь эксплуатационный срок, даже в условиях агрессивной кухонной среды. В комплект также входят декоративные заглушки с логотипом BOYARD.
Прямые боковины для стандартного ящика представлены в вариантах монтажной длины от 300 до 500 мм в трёх популярных цветах: графитовый, белый и серый.
Для сборки выдвижного мебельного ящика с помощью боковин SBDW11 необходимо самостоятельно изготовить фасад, заднюю стенку и дно ящика с учетом собственных пожеланий и потребностей по ширине и высоте готового ящика.
Высоту выдвижного мебельного ящика можно увеличить, используя прямоугольные рейлинги SBR09 и держатели рейлинга SBH40, в том количестве, ящик какой высоты вам необходим.Внимание, важная информация!
Групповая коробка боковых стенок SBDW11 включает 10 комплектов боковин, а также 10 отдельных пакетов с держателями фасада, декоративными заглушками и необходимым крепежом.
В случае приобретения боковых стенок в розницу следует обязательно помнить, что для каждого приобретённого комплекта боковин вам обязательно должны положить пакетик с комплектующими и крепежом. Обязательно проверяйте наличие необходимого количества пакетиков с комплектующими при получении товара, а также не забывайте о них при распаковке вашего заказа.





