Официальный дилер

ВАШ ЗАКАЗ Оформить заказ

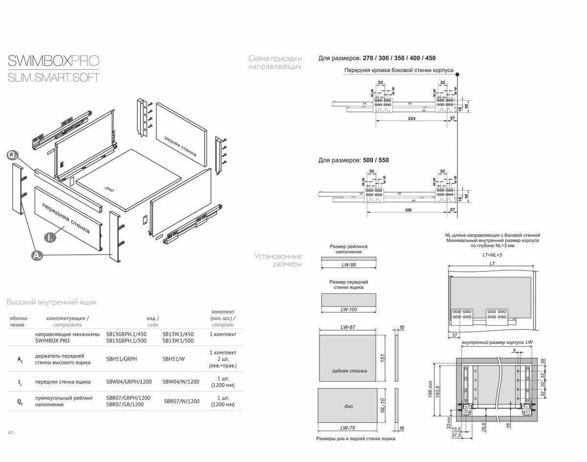
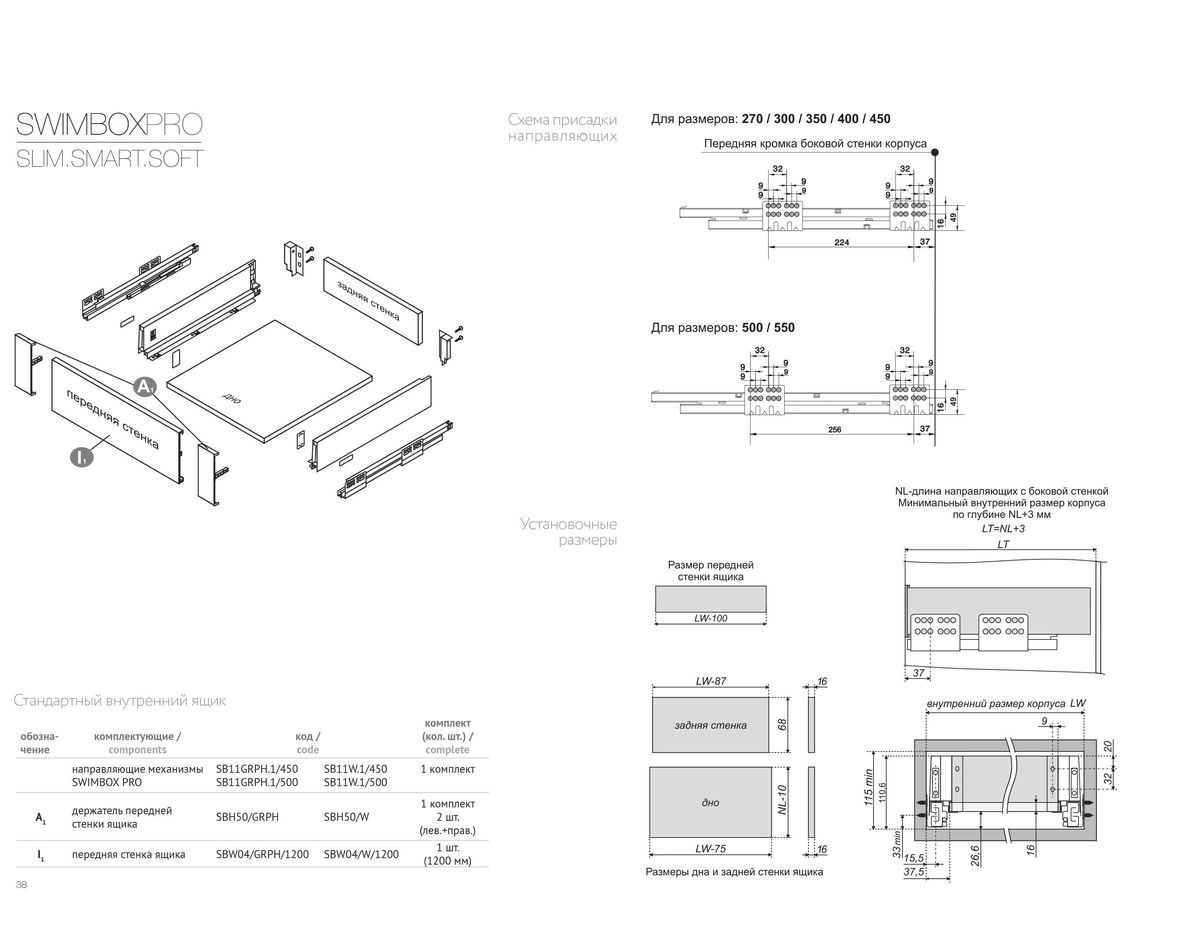
Передняя стенка ящика SBW04/W/1200

Код товара: 25277
Артикул: SBW04/W/1200

цена по запросу