Официальный дилер

ВАШ ЗАКАЗ Оформить заказ

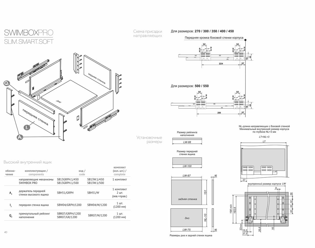
Держатель передней стенки высокого внутреннего ящика SBH51/W

Код товара: 25274
Артикул: SBH51/W

цена по запросу